Sold STC

Sold STC

Guide Price £475,000

Church Hill, Stalbridge, Sturminster Newton

  • Detached Character Home
  • Four Good Sized Bedrooms
  • Four Reception Rooms
  • Parking and Large Garage
  • Outdoor Games Room
  • Spectacular Rural Views
  • Easy Reach of the Town
  • No Onward Chain
  • Energy Efficiency Rating Exempt
A rare opportunity to purchase a delightful detached four bedroom Grade II listed converted school, which boasts one of the most desirable views in the county with a far reaching spectacular outlook over the beautiful Blackmore Vale countryside. The property lies on the fringe of one of Dorset's smallest towns that caters exceptionally well for everyday needs. There is an independent award winning supermarket, family run butchers, post office and opticians as well as a pharmacy, dental surgery, highly rated primary school and community library. In addition there is a public house and a number of takeaway outlets. The property dates to 1832 and has been the very much cherished and enjoyed home to our sellers for about forty years. During this time it has been well maintained and improved with the addition of a garden room that takes in those breath-taking views, a utility has been added and the first floor created, which lends itself to further development - subject to the necessary permissions. The property retains some fabulous character features, such as the large arched windows, deep window sills and exposed timbers on the first floor. Catering to modern day expectation there is secondary glazing to some windows, gas fired central heating and wholly owned solar panels that provide an income. The property provides over 2000 sq. ft (193 sq. m) of living space as well as generously sized private gardens and a large room beneath the garage that offers plenty of options as to its use. A viewing is an absolute must to truly appreciate what this home has to offer the next owner.

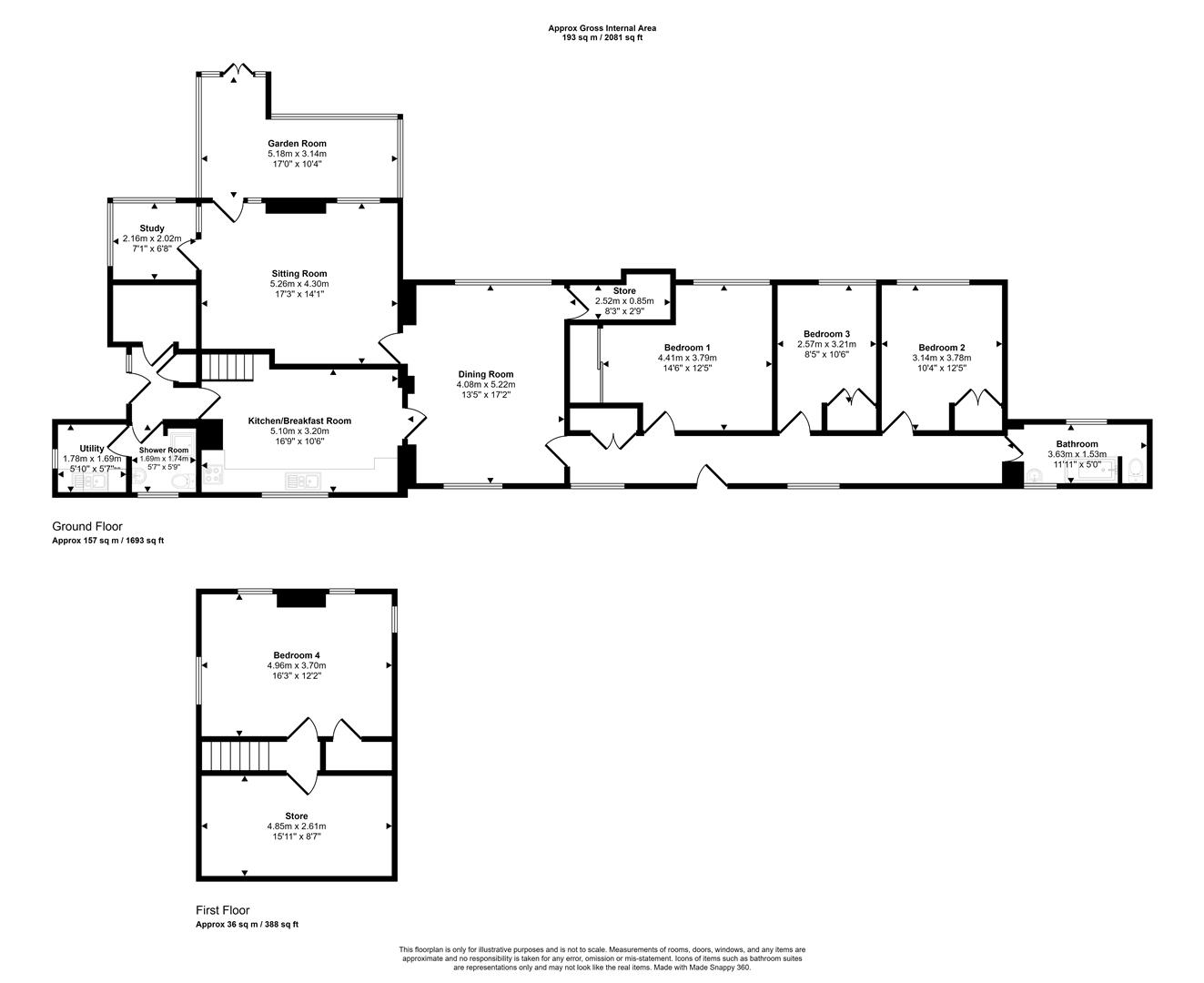
ACCOMMODATION

Ground Floor

Entrance Hall

The original arched timber door from the front opens into a long, bright and welcoming entrance hall. (However, the main entrance used is from the drive into the side hall.). Three high level windows to the front. Ceiling lights. Smoke detector. Two radiators. Power point. Airing cupboard housing the hot water cylinder and fitted with slatted shelves and hanging rail and shelf. White panelled doors to the bathroom, bedrooms and to the:-

Dining Room

High level window to the front and window with deep sill taking in a fabulous view over the Blackmore Vale. Ceiling light. Central heating thermostat. Radiator. Power points. Door to walk in store cupboard fitted with shelves and ceiling light. White panelled door to the kitchen/breakfast room and part glazed door to the:-

Sitting Room

Window to the rear with view over the Blackmore Vale countryside. Wall lights. Two radiators. Power and television points. Built in media cupboard. Feature fireplace with timber surround and coal effect gas fire. Part glazed double doors to the study and to the:-

Garden Room

A few steps down to the garden room with windows to the sides and rear plus double doors opening to the rear - all with a wonderful view over the Vale. Wood frame with mini wall capped in Chinese slate. Wall lights. Two radiators. Power points. Chinese slate tiled floor.

Study

Window with outlook over the drive to the side and vale to the rear. Ceiling light. Wall shelves.Radiator. Power and telephone points.

Kitchen/Breakfast Room

Tall window with tiled sill to the front. Ceiling and recessed ceiling lights. Radiator. Power and telephone points. Fitted with a range of light wood effect kitchen units consisting of floor cupboards, separate drawer unit and eye level cupboards and open shelves. Good amount of work surfaces with tiled splash back. Stainless steel one and half bowl sink and drainer with swan neck aerator mixer tap. Five burner gas hob with extractor fan over. Built in eye level double electric oven. Space and plumbing for a dishwasher. Vinyl flooring. Steps rising to the first floor and door to the:-

Side Hall

Door open to the drive side of the property. Ceiling light. Smoke detector. Radiator. Power points. Tiled floor. Cloaks cupboard fitted with shelf, hanging rail and coat hooks. Door to further walk in store cupboard housing the electrics, fitted with light and space for an upright freezer and pantry fitted with shelves. Door to the:-

Shower Room

Obscured glazed arched window with tiled sill to the front elevation. Ceiling light. Extractor fan. Pat tiled walls. Radiator. Fitted with a tiled shower cubicle and electric shower, low level WC with dual flush facility and pedestal wash hand basin with tiled splash back. Tiled floor. Natural wood panelled door to the:-

Utility

Window to the side elevation. Ceiling light. Victorian style airer. Wall mounted gas fired central heating boiler and programmer. Fitted with a broom cupboard and eye level cupboards plus wall shelves. Large sink with tiled splash back. Space and plumbing for a washing machine and for a tumble dryer. Tiled floor.

Bedroom One

Window with deep sill, secondary glazing and boasting a far reaching view over the vale. Ceiling and recessed ceiling lights. Radiator. Power and television points. Built in wardrobes with sliding doors, hanging rail and shelf.

Bedroom Two

Window with deep sill and secondary glazing, enjoying a stunning view over the adjoining countryside. Ceiling light. Radiator. Power points. Built in wardrobe with hanging rail and shelf.

Bedroom Three

Window with deep sill and secondary glazing overlooking the rear garden and views of the nearby countryside. Ceiling light. Radiator. Power points. Built in wardrobe with hanging rail and shelf.

Bathroom

Obscured glazed window to the front and rear with secondary glazing. Ceiling light. Extractor fan. Recessed cupboard fitted with shelves. Radiator. Shaver socket. Fitted with pedestal wash hand basin, bath with mixer tap and shower attachment and a low level WC. Vinyl flooring.

First Floor

Bedroom Four

Stairs rise to a small landing with ceiling light, exposed beams and door to the store room and to the bedroom. Skylights to the side with rural views and two windows to the rear with lovely far reaching views over the vale. Ceiling lights. Exposed beams. Two radiators. Wall shelves. Power points. Door to walk in wardrobe with hanging rail and shelves. There is potential to develop and incorporate the store room to make a bedroom suite with dressing room and en-suite - subject to the necessary permissions.

Store Room

Ceiling light. Exposed beams. Stainless steel sink and drainer.

Outside

Parking and Garage (6.53m'' x 6.50m'')

The property is approached from the road onto a tarmacadam drive with space to park three to four cars and leads up to the garage. This has an electric remote controlled up and over door with personal door to side of it. Fitted with light and power, rafter storage and window to the rear plus the solar panel controls. Part of the garage has been partitioned off to provide a store room.

Games Room (5.84m'' x 6.15m'')

Beneath the garage and accessed from the garden there is a large room that offers flexible usage - a games room, hobbies room or playroom or even as an occasional bedroom. Light and power and window to the rear with view over the garden to the adjoining countryside.

Gardens

The gardens lie to the rear of the property and in two parts. Steps lead down to a level garden that is to the back of the bedrooms, laid to lawn with a pond and seating area and enclosed by an old stone wall. Steps rise to an unused door which is now the store cupboard from the dining room. This part of the garden provides great privacy and a sheltered spot. From the back of the cottage a gate opens to another part of the garden, which is laid to lawn and slopes to the adjoining pastureland and has a fabulous far reaching view over the Blackmore Vale countryside. A path leads to the games room. Both parts of the garden have beds planted with a variety of shrubs and flowers.

Useful Information

Energy Efficiency Rating - Exempt due to Grade II Listed Status
Council Tax Band F - Dorset Council
Gas Fired Central Heating
Some Secondary Glazing
Mains Drainage
Freehold Tenure
Vendors are Suited

Directions

From Sturminster Newton

Leave Sturminster via Bridge Street at the traffic lights go over the bridge and turn right onto the A357. Continue on this road for approximately 5 miles turning left where Stalbridge is signposted. On entering the town go through the single lane onto the High Street. Continue passing the Cross and the church. The property will be found on the right hand side just after the turning for Drews Lane. Postcode DT10 2LS

Book a viewing

Or call us to make an enquiry

01258 473030

1 Market House, Market Place, Sturminster Newton DT10 1AS

Calculate

Please be aware, these results are for illustrative purposes only and should not be considered as a mortgage quote. These are based on a repayment mortgage and may vary depending on the term and interest rate of your mortgage.

Lender fees may also be applicable. If you would like guidance on the right mortgage for you, we recommend speaking to a mortgage consultant.

Results

Stamp Duty To Pay:

Effective Rate:

Tax Band % Taxable Sum Tax

Are you looking to sell?

Book a Valuation