Sold STC

Sold STC

Asking Price £750,000

Bridge Street, Sturminster Newton

  • Grade II Listed
  • No Onward Chain
  • Annexe
  • Private Garden
  • Three Reception Rooms
  • Double Garage
  • Town Centre
  • Large Garden
  • EPC Rating Exempt
A great opportunity to purchase a piece of English heritage with this thatched Grade II listed property, boasting approximately 4315 sq. ft (401 sq. m) of flexible accommodation arranged over four floors with six generously sized bedrooms and ground floor annexe, which has flexible accommodation of one or two bedrooms. The property is offered for sale with the potential of no onward chain, enjoying an ideal location close to the town centre and sits in grounds of around a third of an acre. The main house dates from the early 1700s with a mystical past; until in more modern times when history confirms that it was used as a cottage/maternity hospital from the early 1900s - the front door still has the 'day and night' bells. This is the first time since 1947 that the property has been brought to the open market; at that point it became a dental practice and the business has been sold twice subsequently. The practice was relocated locally 8 years ago and the wing renovated as a self-contained annexe. This is ideal to provide a home for relatives who need some support, or for income, such as rental property or commercial business, as it has its own entry. The main house has always been very much loved and the enjoyed home of our sellers for the last thirty five years. During this time it has been exceedingly well cared for with regular updates that combine modern day living with old world traits. There are many character features, indicative of its era, such as pane glass sash windows some with shutters, a beautiful leaded light window, high ceilings and exposed beams plus the original panelled front door with fanlight above. In addition, two tunnels run under the garden to the road - previous use unknown. The property makes a fabulous home for an established or growing family with plenty of internal and external space and must be viewed to be appreciated. This is a rare chance to purchase a home of this size and an early viewing is urged.

BRIDGE STREET, STURMINSTER NEWTON

The Property

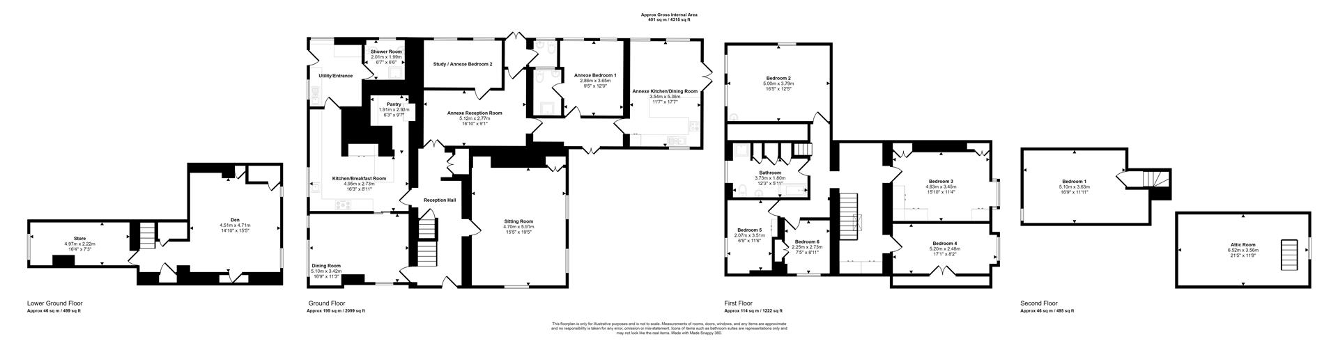
Accommodation

Ground Floor

Living at the property one would probably enter via the utility room, which is fitted with a range of units that match the kitchen and with space for appliances. From the utility there is access to the shower room and steps that lead into a good sized kitchen. The kitchen is fitted with a stylish range of soft closing units in a bamboo finish and consists of floor cupboards with corner carousels, deep pan and cutlery drawers, pull out spice rack and bottle store. There is a generous amount of granite work surfaces with matching upstands and inset double sink with swan neck mixer tap. In addition there are built in appliances, comprising:- dishwasher, fridge, five plate induction hob, plus conventional oven and grill, steam oven, warming drawer and combination oven. From the kitchen there is a walk in pantry and access to the formal dining room, which has a fabulous leaded light window. The inner hall, which was the original main entrance, provides access to the annexe and sitting room that has a double aspect with window to the roadside and two large sash windows with shutters overlooking the rear garden.

First Floor

The galleried landing has built in book/display shelves and storage cupboards and provides access to a double bedroom (bedroom 3), which has access to a room above, and the main bedroom, which has a range of fitted bedroom furniture. Both bedrooms have sash windows with shutters and an outlook over the rear garden. The inner hall leads to two single bedrooms, both with built in wardrobes, the bathroom, which has a walk in airing cupboard and a large double bedroom with double outlook and fitted with a modern vanity unit. From the inner hall, stairs rise to the second floor.

Second Floor

On the second floor there is a small landing with door opening to another double bedroom with window overlooking the road and boasting exposed beams and large storage cupboard that houses the water tank. From bedroom 3 there is a loft hatch with drop down ladder providing access to the attic room, which makes a wonderful adult escape place or an out of sight play room.

Lower Ground Floor

On this floor there is a large reception room that makes a fabulous teenage den or great work from home space and has a door to the rear that opens to steps leading up to the rear garden. There is also a store room and access to two underground tunnels.

The Annexe

Accommodation

The annexe was converted eight years ago, having been one of the town's dental practices. This lovely addition provides single storey (with no steps) flexible usage and multi functional rooms with exceptionally high ceilings that make it hard to date - although it is thought that the original structure was Victorian. It has its own entrance to the side of the building. The accommodation consists of entrance hall with door to the cloakroom and to the main reception room, which has double lockable doors to the main house. There are two double bedrooms, one with en-suite shower room and one currently being used as a study. An inner hall leads to the kitchen/dining room, which boasts a triple aspect with sash windows to the sides and double doors opening to the rear garden and paved seating area. The kitchen area is fitted with plenty of soft closing cupboards with corner carousel and pull out bin store, generous amount of work surfaces, a four ring induction hob and one and half bowl sink and drainer with swan neck mixer tap. There is space for under counter appliances (available by separate negotiation) and built in eye level double electric oven with warming drawer.

Outside

Double Garage and Parking

The property is vehicularly accessed via Church Lane onto a large drive with space to park four to six cars and leads to the double garage, which has an up and over door and fitted with light and power. The generously sized drive provides plenty of parking for cars.

The Gardens

The mature gardens lie to the side of the annexe and the rear of the main house. Predominately laid to lawn, bordered by well stocked shrub and flower beds with the 'Cedar of Lebanon' standing proud and on guard over the water feature. It is believed that the tree is even older than the house. The outdoor buildings, the shed and summerhouse, are fitted with light and power and the garden has multiple electric lights.

Useful Information

Energy Efficiency Rating Exempt due to Grade II Listed status
House - Council Tax Band F - Annexe: Band A with 50% discount
Gas Fired Central Heating from two boilers that work in unison to heat the whole property. Located in the lower ground floor main room.
Original style single glazed windows with some secondary glazing
Mains Drainage
Freehold
Potential for No Onward Chain

Location

Sturminster Newton

The property is situated just a few strides from the centre of the market town of Sturminster Newton. Steeped in history and tradition, the town still has a Monday Market and offers a combination of country and town living with easy access to some fabulous walking tracks, including the Trailway and nearby is the famous water mill. There is a range of independent shops and chain stores, doctor and dentist surgeries, schooling for all ages and a variety of entertainment venues. Further facilities which are all about 10 miles away, may be found at Blandford, Shaftesbury, Sherborne and Gillingham both of, which have mainline train stations, serving London Waterloo and Exeter St. David's.

Directions

From Morton New Office in Sturminster

From the office turn left out of the door and proceed down onto Bridge Street. The property will be found a short distance on the left hand side on the corner of Church Lane. The drive, parking and main entrance to the house is off Church Lane. Postcode DT10 1BZ.

Book a viewing

Or call us to make an enquiry

01258 473030

1 Market House, Market Place, Sturminster Newton DT10 1AS

Calculate

Please be aware, these results are for illustrative purposes only and should not be considered as a mortgage quote. These are based on a repayment mortgage and may vary depending on the term and interest rate of your mortgage.

Lender fees may also be applicable. If you would like guidance on the right mortgage for you, we recommend speaking to a mortgage consultant.

Results

Stamp Duty To Pay:

Effective Rate:

Tax Band % Taxable Sum Tax

Are you looking to sell?

Book a Valuation